Bygg hållbara affärsrelationer med vår expertis!

Bygglovsritningar – snabbt och professionellt
Behöver du bygglovsritningar? Vi erbjuder skräddarsydda lösningar för alla typer av byggprojekt. Våra erfarna arkitekter säkerställer att dina ritningar uppfyller gällande lagar och regler. Vi hjälper dig med dina bygglovsritningar från detaljplan granskning till startbesked, alltid till ett fast pris. Kontakta oss idag för en kostnadsfri konsultation.
Erfarna bygglovskonsulter
Fackmannamässiga bygglovsritningar
Alltid fast pris
Hur går processen för bygglovsritningar?

Offertförfrågan
Skicka in dina uppgifter via kontaktformuläret för att få en kostnadsfri offert inom 12h.

Projektstart!
Vi startar upp ditt projekt med avstämningsmöte för att gå igenom ditt projekt tillsammans med dig för att göra din idé till verklighet.

Ritningar skapas
Vi jobbar fram beställda ritningar åt dig inom ett par arbetsdagar och skickar ut dem till dig för granskning. Ritningarna revideras enligt dina önskemål tills du är nöjd.

Leverans!
Du får slutgiltiga handlingar, redo för att skicka in till kommunen.

Hjälp med bygglovsritningar
Behöver du ritningar till bygglov? Kontakta våra erfarna arkitekter för kostnadsfri rådgivning och en offert idag!
Kundnöjdhet är viktigt för oss
Utforska våra färdiga ritningspaket
Kolla in våra färdiga ritningspaket. Vi kan även skräddarsy och anpassa ritningen så att de passar perfekt till dina behov och önskemål.
Bygglovsritningar till enbostadshus
Drömmer du om det perfekta hemmet, skräddarsytt för dina önskemål och behov? Vi är här för att göra dina drömmar till verklighet. Vår team av erfarna arkitekter och konstruktörer är dedikerade till att hjälpa dig att rita och forma ditt drömhus till perfektion.
Varför välja oss?
- Personlig Service: Vi tror på att skapa en nära relation med våra kunder. Vi lyssnar noga på dina idéer och önskemål för att förstå din vision.
- Expertis: Vårt team har gedigen erfarenhet och kunskap inom bygglov och konstruktion. Vi har hjälpt otaliga kunder att förverkliga sina drömprojekt.
- Kreativitet: Vi är passionerade om att skapa unika och innovativa designlösningar. Ditt drömhus kommer att vara en unik reflektion av din personlighet och stil.
Kontakta oss idag och låt oss hjälpa dig att rita och bygga ditt drömhus. Oavsett om det är en modern villa, ett traditionellt hem eller något däremellan, så kan vi göra det möjligt. Skapa ditt drömhus med oss och njut av ett liv i komfort och skönhet.
Få ditt bygglov nuBygglovsritningar till flerbostadshus
Letar du efter en pålitlig partner för att rita och designa ditt nästa flerbostadshusprojekt? Då har du kommit rätt! Vår erfarna och kompetenta arkitekter och konstruktörer är redo att ta dina visioner och omsätta dem i verklighet.
Våra tidigare erfarenheter har gett oss djup insikt och expertis inom området, och vi är redo att använda den kunskapen för att hjälpa dig att skapa en bostadslösning som inte bara är funktionell och effektiv, utan även estetiskt tilltalande.
Vårt team är kreativt och flexibelt, och vi anpassar våra designlösningar efter dina specifika behov och önskemål. Oavsett om du planerar ett mindre bostadshusprojekt eller en större bostadsutveckling, kan vi hjälpa dig.
Begär en offertBygglovsritningar till industribyggnad
Som dedikerade arkitekter och konstruktörer med en passion för industriell design är vi specialiserade på att skapa innovativa och funktionella lösningar för industribyggnader. Med årtionden av erfarenhet i branschen kombinerar vi konstnärlighet med teknisk expertis för att leverera skräddarsydda och hållbara arkitektoniska lösningar som möter dina unika behov och krav.
Få ditt bygglov nuBygglovsritningar till attefallshus
Drömmer du om ett vackert och funktionellt Attefallshus på din tomt? Vi på Bygglovstjänst kan hjälpa dig med ritningarna. Vi skräddarsyr Attefallshus som passar perfekt till dina behov och önskemål.
Vårt erbjudande:
- Anpassade ritningar: Vi gör ritningar som passar din tomt och dina önskemål.
- Praktisk design: Vi fokuserar på att göra huset funktionellt och användbart.
- Erfarenhet: Våra arkitekter och konstruktörer har kunskap och erfarenhet.
- Bygglovstjänst är din partner för ritningarna.
Bygglovsritningar till tillbyggnad
Vi hjälper dig med en tillbyggnad som passar dina behov och önskemål.
Våra erfarna arkitekter och konstruktörer specialiserar sig på att skapa anpassade tillbyggnader. Oavsett om du vill utöka ditt kök, skapa ett nytt sovrum, bygga ett hemmakontor eller lägga till en vinterträdgård, har vi expertisen att göra det åt dig.
Här är varför du bör välja oss för din tillbyggnad:
- Skräddarsydda lösningar: Vi förstår att varje kunds behov och önskemål är unika. Vårt team arbetar nära med dig för att skapa en tillbyggnad som passar perfekt med din befintliga struktur och dina visioner.
- Professionell expertis: Våra arkitekter och konstruktörer har gedigen erfarenhet inom branschen och har genomfört många framgångsrika projekt. Du kan lita på oss för högkvalitativa lösningar.
- Smarthet och kreativitet: Vi strävar efter att skapa tillbyggnader som är inte bara funktionella utan också vackra och unika. Vi kombinerar smarthet med kreativitet för att ge dig den bästa möjliga lösningen.
- Bygglov och utförande: Vi tar hand om hela bygglovsprocessen åt dig. Detta sparar tid och energi för dig och kan även rekommendera erfarna entreprenörer för byggnationen
Kontakta oss nu för en kostnadsfri konsultation och offert!
Få ditt bygglov nuVanliga frågor & svar
Bygglovsritningar är ett samlingsnamn för olika typer av ritningar som krävs vid bygglovsansökan. Grundläggande bygglovsritning heter arkitektritning och ska vara fackmannamässigt utförd. Utöver det krävs det ofta konstruktionsritningar, planritningar, sektionsritningar och eventuellt fasadritning. Alla bygglovsritningar ingår sedan i bygglovshandlingarna som följer din bygglovsansökan.
💡 Läs mer om det här: Vad är bygglovsritningar?
Bygglovstjänst erbjuder alltid ett fast pris. Kostnaden för dessa ritningar varierar beroende på flera olika faktorer. Se vårt bygglovsritningar pris.
Vid inlämnande av en bygglovsansökan eller när du föreslår en bygganmälan är det nödvändigt att inkludera bygglovsritningar. Dessa ritningar måste upprättas enligt yrkesmässiga standarder och den specifika omfattningen kan variera beroende på ditt ärende. Det kan innefatta konstruktionsritningar, planritningar, kontrollplaner, energiberäkningar och andra relevanta dokument. Vår verksamhet är specialiserad på att generera olika typer av bygglovsritningar för enskilda kunder och tar även hand om hela bygglovsansökningsprocessen, vilket underlättar för dig.
Tidsfrister för bygglovsprocessen är reglerad i plan- och bygglagen (PBL). Det är dock viktigt att förstå att din egen insats är avgörande för tidsåtgången, eftersom tidsfristerna gäller först efter att din ansökan anses fullständig. Gör du rätt från början går det med andra ord avsevärt snabbare.
– Kommunens handläggningstid får maximalt vara 10 veckor från det att din ansökan anses fullständig
– Kommunen har rätt att förlänga handläggningstiden med ytterligare 10 veckor vid särskilda skäl, alltså till maximala 20 veckor. Lagen är generellt formulerad och anger inga specifika omständigheter som räknas som särskilda skäl, utan bara om det är ”nödvändigt på grund av handläggningen eller utredningen i ärendet”.
– Vår erfarenhet är dock att bygglovsbeslut i regel går avsevärt snabbare än så, oftast inom 4 veckor när allt är fackmannamässigt utfört. Variationen är dock stor mellan olika kommuner.
Absolut, vi har närmare 10 års erfarenhet av bygglovsprocesser i Sverige. Vi skräddarsydd hjälp för att underlätta din bygglovsprocess. Kontakta oss idag för att få professionell vägledning och en smidig ansökningsprocess!
Vanligtvis behöver vi befintliga ritningar, skisser samt en tomtkarta.
Var kan jag hitta hjälp med bygglovsritning?
För att få hjälp med bygglovsritningar finns det flera alternativ att överväga:
Arkitektbyråer: Professionella arkitekter specialiserade på byggnadsdesign och bygglovsansökningar kan skapa detaljerade ritningar och hjälpa dig genom hela processen.
Byggkonsulter: Konsultfirmor som är specialiserade på byggprojekt kan erbjuda hjälp med ritningar och bygglovsprocessen.
Lokala ritningsbyråer: Det finns företag och ritningsbyråer som är inriktade på att skapa ritningar för bygglovsansökningar. Dessa kan vara mer kostnadseffektiva än större arkitektbyråer.
Online-plattformar: Det finns online-plattformar där du kan hitta professionella designers och arkitekter som erbjuder tjänster. Du kan beskriva ditt projekt och få offerter från olika experter.
Byggnadskonsulter: Byggnadskonsulter kan också vara en resurs för att hjälpa dig med bygglovsprocessen och skapa de nödvändiga ritningarna.
Rita själv: Har du tid för att rita själv och kan rita fackmannamässigt?
Då kanske du ska överväga att rita gratis. Att ta fram bygglovsritningar till enklare projekt som till exempel bygglovsritningar garage eller uterum kan vara värt att testa rita själv. Det finns en del online gratis program, prova googla “bygglovsritningar program”.
Innan du väljer en tjänsteleverantör är det viktigt att göra lite research och jämföra olika alternativ. Här är några steg du kan följa:
- Referenser och tidigare arbeten: Kontrollera företagets referenser och titta på tidigare projekt de har genomfört.
- Prisuppgifter: Jämför priser från olika tjänsteleverantörer. Kom ihåg att den billigaste inte alltid är den bästa, så överväg kvaliteten på deras tidigare arbete.
- Lokal erfarenhet: Om möjligt, välj en tjänsteleverantör med lokal erfarenhet eftersom de är mer bekanta med de specifika byggreglerna och kraven i ditt område.
- Kommunikation och förståelse: Se till att du känner dig bekväm med tjänsteleverantörens kommunikation och att de förstår dina behov och önskemål.
Vilka ritningar behövs för bygglov?
För att ansöka om bygglov krävs vanligtvis en uppsättning ritningar och dokumentation som ger en fullständig och detaljerad översikt av det planerade byggprojektet. De exakta kraven kan variera beroende på vad du vill bygga och vart, men nedan är vanliga ritningar och dokument som ofta krävs för att ansöka om bygglov:
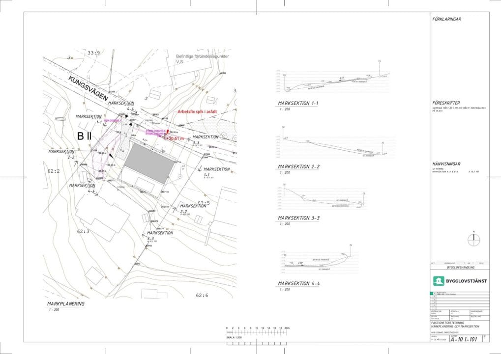
- Situationsplan: En ritning som visar fastighetens placering i förhållande till omgivningen, gator och andra markmärken. Den bör också inkludera eventuella befintliga byggnader på fastigheten.
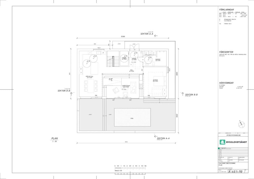
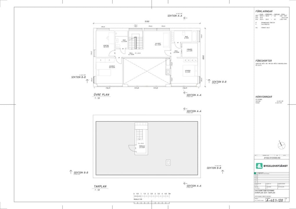
- Planritning: En översiktsritning av byggnadens våningar, sett ovanifrån. Den visar rummens placering, dimensioner, dörrar, fönster och andra väsentliga detaljer. Ritningen ska även inkludera information om användning av olika delar av byggnaden.
- Sektionsritning: En vertikal snittbild genom byggnaden som visar hur olika våningar och sektioner är anordnade i förhållande till varandra. Det ger en djupare förståelse för byggnadens struktur.
- Fasadritningar: Ritningar som visar byggnadens utsende sett från olika håll. Fasadritning inkluderar detaljer om fönster, dörrar, material och eventuella utsmyckningar.
Vad kostar en arkitekt?
Priset för en arkitekt kan variera avsevärt beroende på olika faktorer, inklusive plats, erfarenhet, projektets omfattning och arkitektens rykte. Generellt sett kan arkitekter debitera på olika sätt:
- Fast pris: Arkitekten kan erbjuda ett fast pris för hela projektet. Detta är vanligtvis baserat på en uppskattad tidsram och arbetsbelastning.
- Timdebitering: En del arkitekter fakturerar per timme. Timpris kan variera beroende på erfarenhet och plats.
- Procentuell avgift: Vissa arkitekter tar ut en procentuell avgift av den totala byggkostnaden för projektet. Detta kan variera, men det är vanligt att det ligger mellan 5-15%.
- Paketerbjudanden: En del arkitekter erbjuder paketpriser för specifika tjänster, som till exempel endast ritningar för en ombyggnad eller designkonsultationer.
För att få en exakt uppfattning om kostnaden är det bäst att kontakta flera arkitekter och begära offerter för ditt specifika projekt. Det är också viktigt att tydligt kommunicera dina förväntningar och krav för att få en korrekt offert. Kom också ihåg att kostnaderna för olika tjänster, som konstruktionsritningar, vvs-ritning, brandritning, och u-värdes deklaration, inte alltid ingår i arkitektens avgifter och bör beaktas separat.



































































